Popoli 3.0

| Narrow

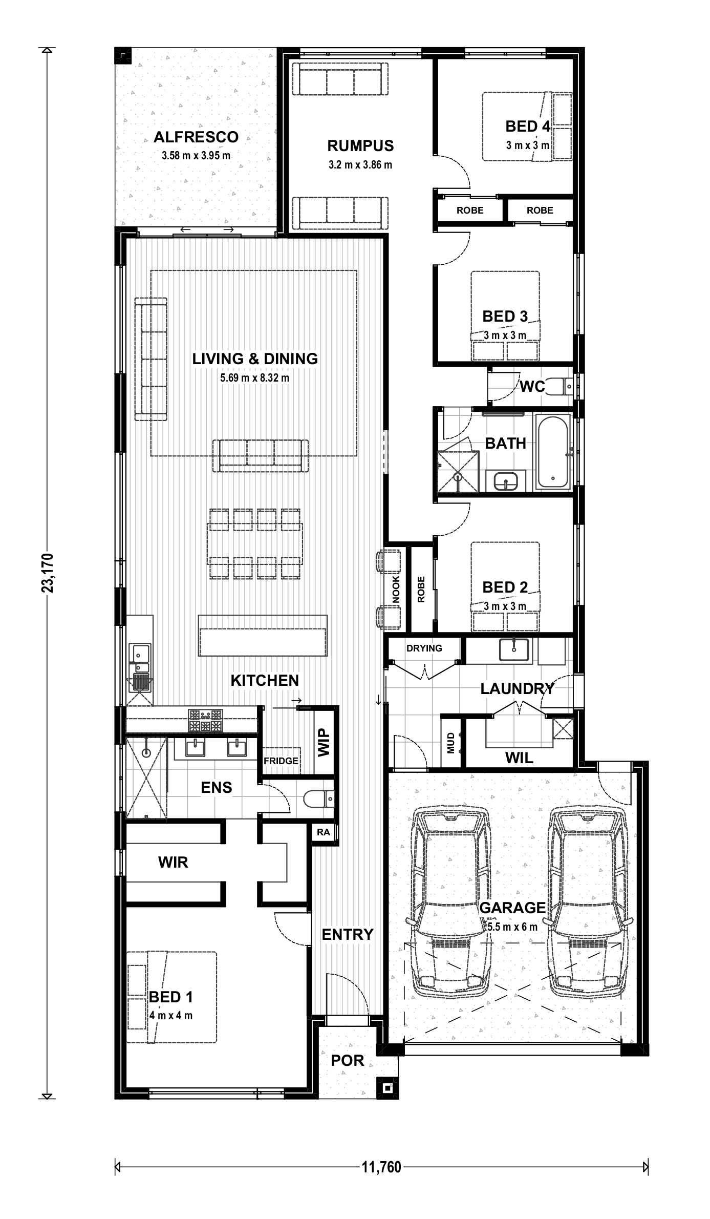
The Narrow Popoli 3.0 floor plan is a thoughtfully designed home that caters to modern family living while optimizing space on a narrow block.
The layout positions the main bedroom at the front of the home, offering a private retreat with an ensuite and walk-in robe. The design also features a rear rumpus room, providing a dedicated space for relaxation, entertainment, or children’s activities. The central hub of the home is the open-plan kitchen, living, and dining area, perfect for seamless family interaction and entertaining. With four bedrooms, multiple living spaces, and a focus on functionality, this floor plan offers a harmonious balance of privacy and shared living.
Measurements
House Width:

11.76 m

House Length:

23.17 m

Min. Lot Width:

12.76 m

Min. Lot Depth:

28.17 m

Area

m2

SQUARES

Residence:

191.13

20.57

Garage:

37.21

4.01

Porch:

2.53

0.27

Alfresco:

14.14

1.52

Inclusions
  • Soil Report, Site Feature Survey, Structurally designed to N2 Wind speed rating.
  • Bushfire Attack Level Assessment (if applicable) Allocation for 12.5 requirements.
  • Energy Rating- based on NCC requirements at the time of signing.
  • 7-year Structural Guarantee
  • Building Permit, including pre-approved inspections completed by clients preferred building surveyor.
  • Construction Risk Insurance, Public Liability & Homeowners Warranty Insurance.
  • Preliminary Design Consultation and full set of working drawings & detailed electrical plan.
  • In-house Colour and Electrical Consultation.
  • Fixed price contract and design specifications.
  • 3-month maintenance period post-handover
  • Site Costs and Connections based on land size up 700m2, maximum 6m set back and 300mm fall. (Excludes rock removal, if required)
  • Engineer designed, class H1 concrete waffle pod slab.
  • Stormwater and Sewer connection (septic not allowed for)
  • Single Phase Underground Power up to 10m from boundary
  • Underground Gas Line and Water Connection (if available to site)

Note: Excludes Initial set up fees & ongoing usage for electricity, gas, water & NBN.

  • R6.0 Insulation Batts to all internal ceilings, excluding garage.
  • R2.5 Insulation Batts to all external walls, including internal wall between garage and dwelling.
  • Breathable wall wrap to all external framed walls, including garage.
  • Sisalation layered underneath Colorbond roof material.
  • Instantaneous Gas or Solar Hot Water System.

Note: Extra upgrades/costs may be required, pending outcome of energy report to ensure NCC requirements are met.

  • Engineer designed roof trusses (Structural steel not included, if required)
  • Prefabricated Timber Wall Frames to Australian Standards
  • Colorbond Steel Roof, gutter, facia, and downpipes.
  • External Cladding Materials based on façade selection.
  • 450mm fully lined eves across façade (if applicable to façade style)
  • Alfresco area under roof line, plaster lined and painted ceiling with concrete floor.
  • Aluminium framed Double Glaze windows & sliding doors with powder coat finish. Including, Obscure glass to all wet areas.
  • Mesh Flyscreens to all openable windows & sliding doors
  • Sectional Panel Lift Double Garage with 2 x remote control and 1 x wall mount remote.
  • 470 width x 900 height Brick Letterbox
  • Wall or ground mounted clothesline.
  • 2 x External Garden Taps
  • 50m2 concrete paving to driveway, crossover, alfresco, entry porch and tank pad.
  • 2000L water tank with pump, pump cover and water main divertor.
  • 5kW Solar System.
  • 2550mm ceiling height with 75mm cove cornice to entire dwelling, including garage.
  • 67mmx18mm MDF Half splayed Skirtings (skirting tiles to all wet areas)and Architraves to all windows & doors.
  • 185mmx18mm MDF skirting to garage walls.
  • Block out blinds to all windows and sliding doors (excluding wet areas)
  • 1 x Melamine Shelf Tower with Single Chrome Hanging Rail to all Robes.
  • 3 Coat Paint System to all internal walls and ceiling
  • Gloss finish to entry, internal doors, Skirtings, and architraves. (semi-gloss option for skirts & archs)
  • 1020mmx2040mm Hume Entrance Door
  • 720mmx2040mm Hume Internal Doors to wet areas & pantry
  • 820mmx2040mm Hume Internal Doors- all remaining doors
  • Hinged Hume Robe Doors to Linen, Broom & Drying Cupboards. (If applicable to the chosen plan)
  • Sliding Robe Doors to all bedrooms & any other robes featured within the chosen plan.
  • Chrome entry Lockset, levers, hinger, latches, striker plates & door stops throughout.
  • Carpet & Underlay selected from Range available within this level of inclusions.
  • 3mm Vinyl Flooring selected from Range available within this level of inclusions.
  • 450×450 Tiling to wet areas, including floors & walls.
  • 20mm Stone Bench top from Range available within this level of inclusions.
  • Custom made soft close cabinetry to all base and overhead cabinets & 1 x bank of 4 drawers with cutlery insert.
  • Selection of Handles for base cabinetry only (No handles on overhead cabinets)
  • Dishwasher Connection & Cold-Water point to fridge space
  • Selection of Chrome Tap ware
  • Stainless Steel sink with 1 & ¾ bowls
  • Horizontal or vertically stacked feature tiled splash back
  • 4 x Melamine Shelves to pantry
  • Westinghouse 90cm Freestanding StainlessSteel Cooker
  • Westinghouse 90cm Stainless Steel Canopy Rangehood ducted to external open air.
  • Westinghouse 60cm Stainless Steel Dishwasher
  • Custom built floating vanity with soft close cabinets and laminate benchtops.
  • Insitu tiled shower base in ensuite & Polymarble base in bathroom
  • Tiled Shower Niche in each shower.
  • 1675mm Acrylic built-in bath Laundry:
  • Selection of Round or Square Above Counter Basins
  • Chrome Tapware and accessories
  • Full Width mirror above vanity
  • Back to wall Toilet Suite
  • Custom built soft close base cabinetry with laminate benchtop.
  • 45L Stainless Steel Trough
  • Chrome Sink Mixer
  • 450×450 Tiled splashback to match flooring.
  • 4 x White Melamine Shelves to Linen Cupboard
  • 1 x White Melamine Shelf to Broom Cupboard (design specific)
  • Laminate Bench seat
  • 3 x Chrome Robe Hooks
  • 20 LED Downlights throughout residence
  • Up to 20 Double PowerPoint outlets & Single PowerPoint outlets as required.
  • Light Tastics to ensuite and bathroom.
  • Exhaust fans above all showers and required toilets.
  • 2-way Switches as per electrical plan
  • White Slimline cover plates and switches
  • TV antenna including 3 TV points.
  • Data distribution box to garage.
  • 1 x Data point as per electrical plan.
  • 1 x External Wall light to laundry.
  • 1 x double fluorescent tube light to garage and alfresco.
  • Hardwired smoke detectors as per electrical plan.
  • 4-star Gas Heating unit
  • Soil Report, Site Feature Survey, structurally designed to N2 Wind speed rating.
  • Bushfire Attack Level Assessment (if applicable) Allocation for 12.5 requirements.
  • Energy Rating- based on NCC requirements at the time of signing.
  • 7-year Structural Guarantee.
  • Building Permit, including pre-approved inspections completed by clients preferred building surveyor.
  • Construction Risk Insurance, Public Liability & Homeowners Warranty Insurance.
  • Preliminary Design Consultation and full set of working drawings & detailed electrical plan.
  • In-house Colour and Electrical Consultation.
  • Fixed price Contract and Design Specifications.
  • 3-month maintenance period post-handover
  • Site Costs and Connections based on land size up 700m2, maximum 6m set back and 300mm fall. (Excludes rock removal, if required)
  • Engineer designed, class H1 concrete waffle pod slab.
  • Stormwater and Sewer connection (septic not allowed for)
  • Single Phase Underground Power up to 10m from boundary.
  • Underground Gas Line and Water Connection (if available to site)

Note: Excludes Initial set up fees & ongoing usage for electricity, gas, water & NBN.

  • R6.0 Insulation Batts to all internal ceilings, excluding garage.
  • R2.5 Insultation Batts to all external walls, including internal wall between garage and dwelling.
  • Breathable wall wrap to all external framed walls, including garage.
  • Sisalation layered underneath Colorbond roof material.
  • Instantaneous Gas or Solar Hot Water System.

Note: Extra upgrades/costs may be required, pending outcome of energy report to ensure NCC requirements are met.

  • Engineer Designed roof trusses (Structural steel not included, if required)
  • Prefabricated Timber Wall Frames to Australian Standards
  • Colorbond Steel roof, gutter, facia, and downpipes.
  • Up to Category 5 Bricks.
  • External Cladding Materials based on façade selection.
  • 450mm fully lined eves across façade (if applicable to façade style)
  • Alfresco area under roof line, plaster lined and painted ceiling with concrete floor.
  • Aluminium framed Double Glaze windows & sliding doors with powder coat finish. Including, Obscure glass to all wet areas.
  • Mesh Flyscreens to all openable windows & sliding doors.
  • Sectional Panel Lift Double Garage with 2 x remote control and 1 x wall mount remote.
  • 470 width x 900 height Brick Letterbox
  • Wall or ground mounted clothesline.
  • 2 x External Garden Taps.
  • 65m2 concrete paving to driveway, crossover, alfresco, entry porch and tank pad.
  • 2000L water tank with pump, pump cover and water main divertor.
  • 5kW Solar System
  • 2700mm ceiling height with square set cornice to entry, kitchen, living/dining & BED 1/ensuite, 75mm cove cornice to remainder of dwelling, including garage.
  • 97mmx18mm MDF Half splayed or single bevelled Skirtings (skirting tiles to all wet areas)
  • 67mmx18mm MDF Half splayed or single bevelled Architraves to all windows & doors.
  • 185mmx18mm MDF skirting to garage walls.
  • Block out blinds to all windows and sliding doors (excluding wet areas)
  • 2 x Melamine Shelf Tower with Single Chrome or Black Hanging Rail to BED 1 walk in robe.
  • 1 x Melamine Shelf Tower with Single Chrome or Black Hanging to remaining robes.
  • 3 Coat Paint System to all internal walls and ceiling
  • Gloss finish to entry, internal doors, Skirtings, and architraves. (semi-gloss option for skirts & archs)
  • 1020mmx2340mm Hume Entrance Door
  • 720mmx2340mm Hume Internal doors to wet areas & pantry
  • 820mmx2340mm Hume Internal doors- all remaining doors
  • Hinged Hume Robe Doors to linen, broom & drying cupboards. (If applicable to the chosen plan)
  • Sliding Robe Doors to all bedrooms & any other robes featured within the chosen plan.
  • Chrome or Matte Black entry lockset, levers, hinger, latches, striker plates & door stops throughout.
  • Carpet & Underlay selected from Range available within this level of inclusions.
  • 5mm Vinyl Flooring selected from Range available within this level of inclusions.
  • 600×600 Tiling to wet areas, including floors & walls.
  • Floor to ceiling tiles in ensuite, excluding separate toilet.
  • 20mm or 40mm Stone benchtop with waterfall ends from Range available within this level of inclusions.
  • Custom made soft close cabinetry to all base and overhead cabinets & 1 x bank of 4 drawers with cutlery insert, 1 x bin drawer & 2 x bank of 3 pot drawers.
  • Selection of Handles for base cabinetry
  • Dishwasher Connection, Cold-Water point to fridge space & Microwave connection.
  • Selection of Chrome or Matte Black Tapware
  • Stainless Steel or Matte Black sink with 1 & ¾ bowls.
  • Horizontal or vertically stacked feature tiled splashback
  • 4 x Melamine Shelves to pantry
  • Westinghouse 90cm Freestanding StainlessSteel Cooker
  • Westinghouse 90cm Stainless Steel Slide-out Rangehood ducted to external open air.
  • Westinghouse 60cm Stainless Steel Dishwasher
  • Custom built floating vanity with soft close cabinets and laminate benchtops.
  • 20mm or 40mm Stone benchtop with waterfall ends from Range available within this level of inclusions.
  • Insitu tiled shower base in ensuite & bathroom
  • Tiled Shower Niche in each shower.
  • Back to wall or freestanding bath selected from Range available within this level of inclusions
  • Selection of Round or Square Above Counter Basins
  • Chrome or Matte Black Tapware and accessories
  • Full Width mirror above vanity
  • Back to wall Toilet Suite
  • Custom built soft close base cabinetry with laminate benchtop.
  • Chrome or Matte Black Sink Mixer
  • 600×600 Tiled splashback to match flooring.
  • 4 x White Melamine Shelves to Linen Cupboard
  • 1 x White Melamine Shelf to Broom Cupboard (design specific)
  • Drying Cupboard with 3-tiered Chrome Hanging Rails (design specific)
  • Laminate Bench seat with open style cabinetry underneath
  • 3 x Chrome or Matte Black Robe Hooks
  • 30 LED downlights throughout residence
  • Up to 30 Double PowerPoint outlets & Single PowerPoint outlets are required.
  • Premium Allowance for feature lighting.
  • Light Tastics to ensuite and bathroom.
  • Exhaust fans above all showers and required toilets.
  • 2-way switches as per electrical plan
  • White Slimline cover plates and switches
  • TV antenna including 3 TV points.
  • Data distribution box to garage.
  • 1 x Data point as per electrical plan.
  • 1 x External Wall light to laundry.
  • 1 x Double fluorescent tube light to garage and alfresco.
  • Hardwired smoke detectors as per electrical plan.
  • 4-star gas heating unit
  • Evaporative Cooling Unit

At JV Dodd we offer the flexibility to mix & match our standard and premium inclusions or provide fully customised options. We offer transparency through our costing stage to help our clients make informed decisions in bringing their home to life.

Facades

Contact

General Enquiry

Popoli 3.0 Enquiry